- Accueil
- Vente
- Seine saint denis
- Pierrefitte sur seine
- RER D - COLIVING DE 6CH CLE EN MAIN
Référence : 1619
Calculette
Partager
RER D - COLIVING DE 6CH CLE EN MAIN
Description de l'offre
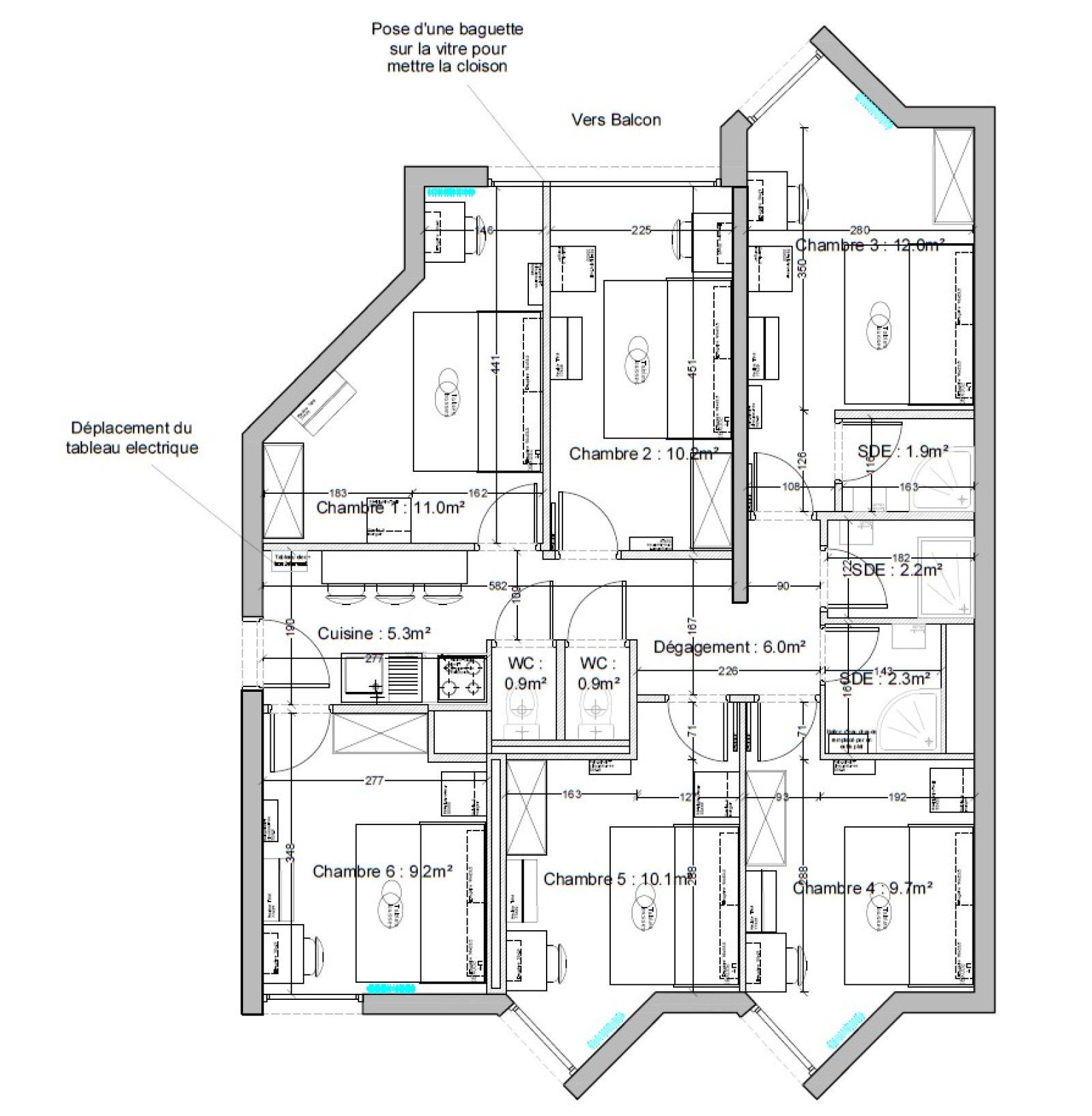
Situé à quelques pas de l'arret du T5 Alcide d'Orbigny et à seulement 10 min du RER D PIERREFITTE-STAINS, nous vous proposons un investissement clé en main à forte rentabilité locative... Il s'agit d'un appartement traversant de type T6 sans aucun travaux avec 6 chambres louées/meublées. 3 chambres jouissent d'un accès balcon. Présence d'une cuisine séparée équipée : lave vaisselle, lave linge, plaque de cuisson, hote et four micro ondes encastré. 3 salles d'eau, 2 cabinets de toilettes séparés. Le système à été imaginé en Plug and Play pour les locataires afin de maximiser leur confort : frigo individuel, lave linge, literie, armoire, bureau, télévision, internet... Il est situé au 2ème étage d'une copropriété bien entretenue. Revenus locatifs annuels CC : 43.080€ RENTABILITE NETTE : 9.71% => 9% FNI. La rentabilité nette est obtenue après déduction de toutes charges : electricité / charges de copropriété / taxe foncière. Disponible immédiatement.
Descriptif du bien
- Code postal : 93380
- Surface habitable (m²) : 82,49 m²
- Nombre de chambre(s) : 6
- Nombre de pièces : 6
- Ascenseur : NON
- Nb de salle d'eau : 3
- Mode de chauffage : Electrique
- Type de chauffage : Radiateur
- Format de chauffage : Individuel
- Exposition : EST
- Année de construction : 1970
- Copropriété : NON
- Quote Part annuelle des charges : 4 610 €
- statut du syndic : pas de procédure en cours
- Prix de vente honoraires TTC inclus : 350 000 €
- Prix de vente honoraires TTC exclus : 335 000 €
- Honoraires TTC à la charge acquéreur : 4.48 %
- Taxe foncière annuelle : 2 258 €
Montant estimé des dépenses annuelles d'énergie de ce logement pour un usage standard est compris entre 1 350 € et 1 860 € . 2023 étant l'année de référence des prix de l'énergie utilisés pour établir cette estimation.
La ville de Pierrefitte-sur-Seine (93380)
Nous Contacter
Afficher le téléphone 06 11 65 36 88Les informations recueillies sur ce formulaire sont enregistrées dans un fichier informatisé par La Boite Immo agissant comme Sous-traitant du traitement pour la gestion de la clientèle/prospects de l'Agence / du Réseau qui reste Responsable du Traitement de vos Données personnelles.
La base légale du traitement repose sur l'intérêt légitime de l'Agence / du Réseau.
Elles sont conservées jusqu'à demande de suppression et sont destinées à l'Agence / au Réseau.
Conformément à la loi « informatique et libertés », vous disposez des droits d’accès, de rectification, d’effacement, d’opposition, de limitation et de portabilité de vos données. Vous pouvez retirer votre consentement à tout moment en contactant directement l’Agence / Le Réseau.
Consultez le site https://cnil.fr/fr pour plus d’informations sur vos droits.
Si vous estimez, après avoir contacté l'Agence / le Réseau, que vos droits « Informatique et Libertés » ne sont pas respectés, vous pouvez adresser une réclamation à la CNIL.
Nous vous informons de l’existence de la liste d'opposition au démarchage téléphonique « Bloctel », sur laquelle vous pouvez vous inscrire ici : https://www.bloctel.gouv.fr
Dans le cadre de la protection des Données personnelles, nous vous invitons à ne pas inscrire de Données sensibles dans le champ de saisie libre.
Ce site est protégé par reCAPTCHA, les Politiques de Confidentialité et les Conditions d'Utilisation de Google s'appliquent.
